Museum Historische Oberamteistraße


Image credits

Brigida González


What is the long description of your project?

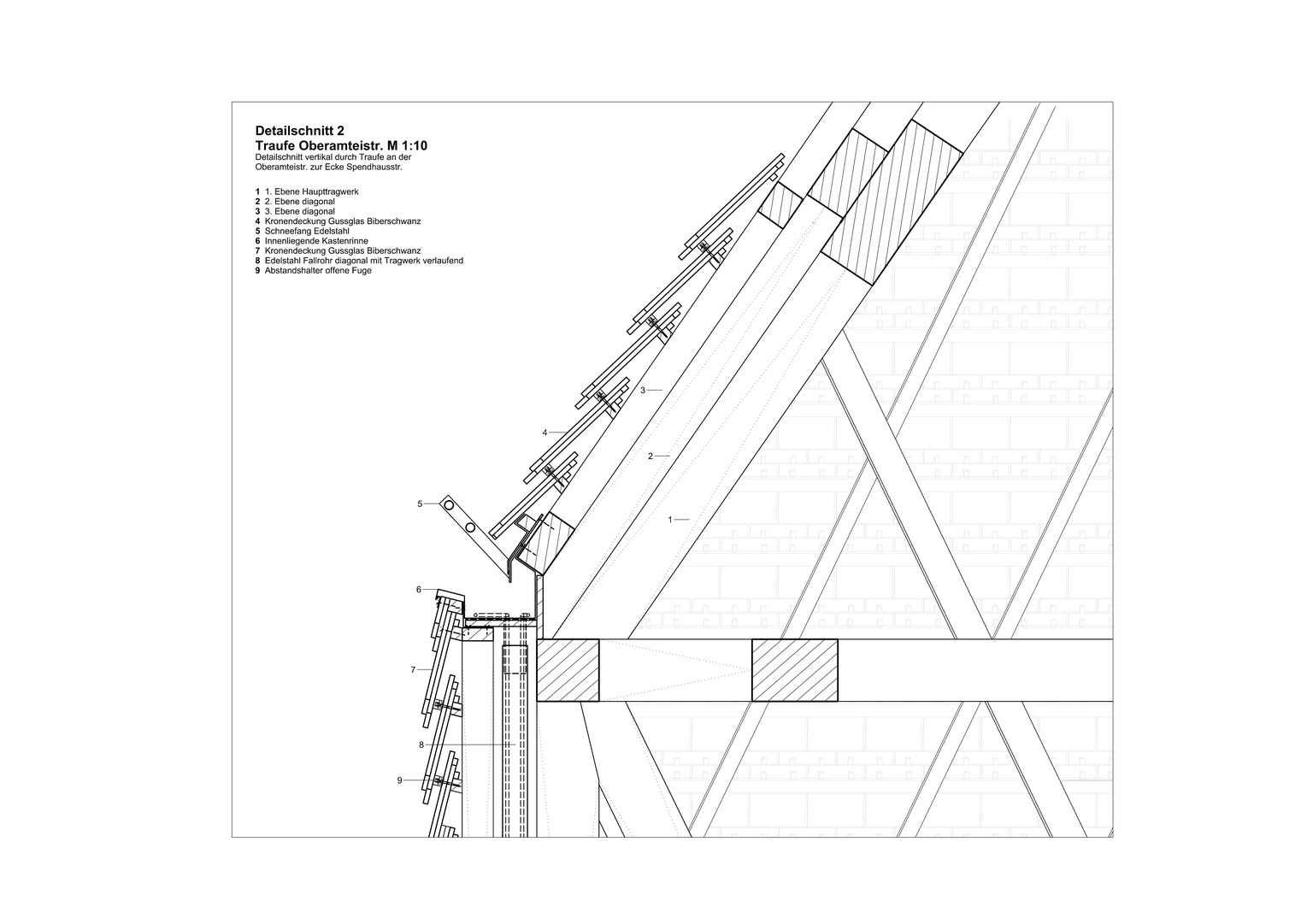
The historic row of houses at Oberamteistraße 28–32 and the basement of the “Stone House” on plot no. 34, which was demolished in 1972, are among the oldest rows of half-timbered houses in southern Germany and authentically reflect the building and living culture since the Middle Ages. The “Historical Row of Houses on Oberamteistraße” competition, launched in 2017, included both the renovation of the old buildings in accordance with monument preservation guidelines and the addition of a new building to structurally secure the historical row of houses on the site of the former “Stone House” corner building. The new building was completed in 2025. The old buildings will serve as a museum in the future and become exhibits themselves. They will showcase over 700 years of urban, cultural, and architectural history. A wooden half-timbered structure supporting the adjacent row of houses In 2017, wulf architekten won the competition. The semi-transparent shell was well received by the jury as a fitting metaphor for the museum project. The exterior of the new building is understated. The internal structure consists of a wooden truss developed by wulf architekten as part of the competition, which supports the adjacent row of houses and replicates the lost volume of the historic building. The new building provides barrier-free access to the old buildings and offers space for smaller events. The façade and roof are covered with a homogeneous layer of cast glass plain tiles. Depending on the incidence of light, reflection, and interior lighting, the wooden half-timbered structure behind is more or less visible, making the building appear translucent or glittering, like a chimera. The newly designed shell makes the interior appear blurred, like a distant memory. Something that lives on in the memories of those who still knew the old house is made visible again for future generations. The buildings that once shaped the cityscape can be experienced again in their historical ensemble effect, and history is presented as a publicly accessible “exhibit.” Eaves detail with internal box gutter The facade and roof construction of the new building for the Museum Historische Oberamteistraße consists of a crown covering of glass plain tiles, which are laid on horizontal wooden battens with an open joint using spacers. The glass plain tile roofing rests on a three-layer, gradually tapering substructure of overlapping wooden struts, which is bolted to the primary supporting structure. All glass tiles are mechanically secured using wooden spacers. A hanger bolt is screwed into the wooden battens, which is located in the joint of the lower layer of the crown covering. The top layer has a hole, was pushed over the hanger bolt offset from the base and fixed by the spacer. This ensures that both layers are securely fastened. The spacer can be removed from the hanger bolt for inspection via an integrated ramp sleeve. To emphasize the abstract form of the new building and not detract from the impression of space, the rain gutter is designed as an internal gutter that connects directly to the crown covering of the roof and facade. The downpipe also runs inside the support structure and has been integrated diagonally into it. Low-tech The new building does not require a thermal envelope or air conditioning and serves purely as a protective structure for the historic cellar. The building is ventilated and smoke is extracted naturally via the open joints in the entire building envelope, without any mechanical assistance. The building envelope is designed so that the building gains solar heat in winter, while overheating in summer is prevented by the multiple layers of cast glass.


Architectural firm / manufacturer

wulf architekten

www.wulfarchitekten.com



Museum Historische Oberamteistrasse_Traufdetail_ ©wulf architekten PNG.png
Museum_Oberamteistraße_251119003© Brigida González für wulf architekten.jpg
Museum_Oberamteistraße_251106087B© Brigida González für wuf architekten.jpg
Museum_Oberamteistraße_251113013© Brigida González für wulf architekten.jpg


Vote here!